For Sale

$1,199,900

2401 NB-132 Route , Greater Lakeburn, New Brunswick E1H4Z7

Remarks

Attention Tradespeople, Mechanics, Business Owners and Entrepreneurs, Commercially Zoned Property on 6 acres and 4 car lifts. This meticulously maintained property offers a rare blend of executive design and commercial versatility. With proper zoning already in place, its an ideal setup for entrepreneurs, tradespeople, or anyone looking to operate a business from home. The site features a massive 40' x 70' garage with 12-foot walls, providing ample space for operations, storage, or customization. An additional 35' x 40' attached garage at the rear further expands the possibilities, making it great opportunity to combine your business and home. The residence is equally impressive, measuring 40' x 60' and built with 12-foot ICF walls for superior insulation and durability. Inside, youll find two spacious bedrooms and two full bathrooms, complemented by a professionally designed mezzanine that serves as a stylish game room or flexible bonus space. The open-concept layout is thoughtfully crafted to accommodate endless possibilities, whether you're envisioning a modern family hub or a dynamic live-work environment. Attention to detail is evident throughout, With in-floor heating, mini-splits and pellet stove to ensure year-round comfort, to the robust 400 amp electrical entrance that supports both residential and commercial needs. This property is a standout opportunity combining high-end design, impeccable upkeep, and serious business potential in a prime location. (id:7526)

Property Summary

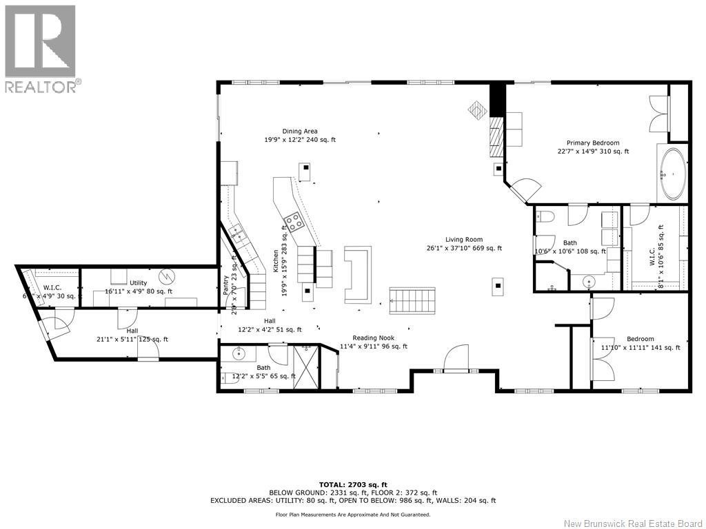
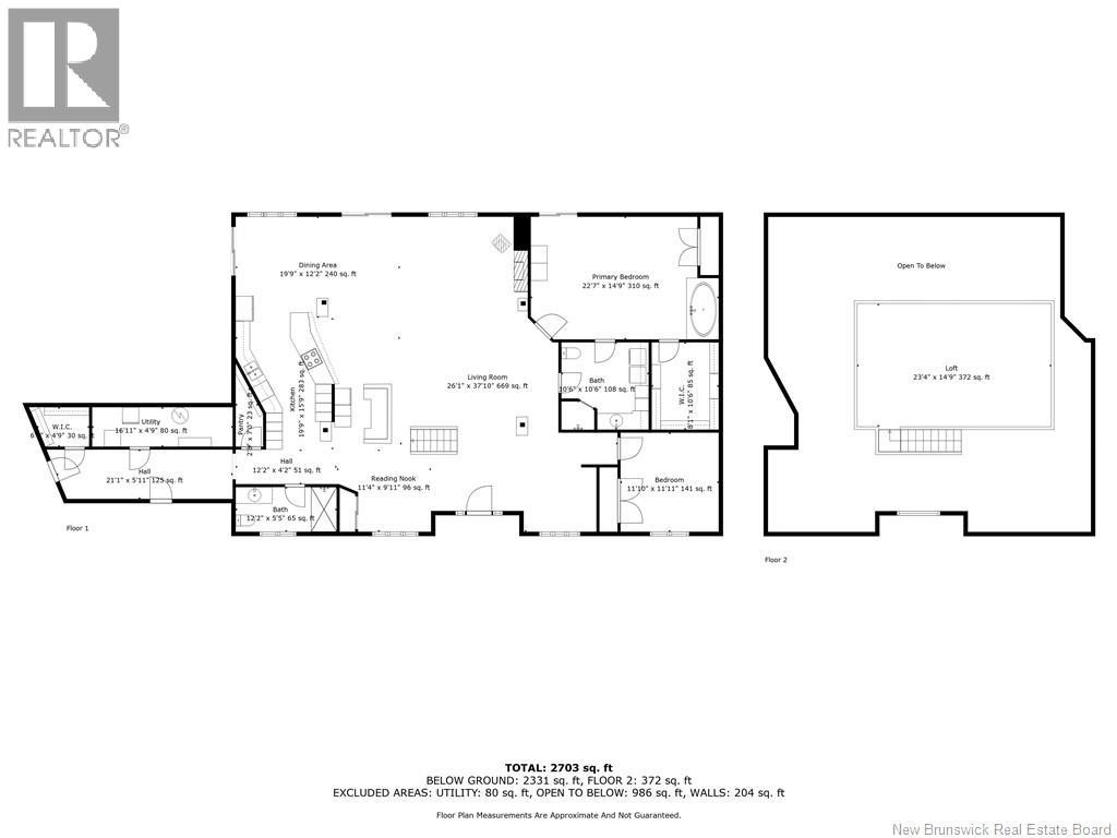
  • Total Finished Area: 6600 sqft
  • Acreage: Yes
  • Built in: 2008

Property Features:

  • Access Type:
    Year-round access , []
  • Ownership Type:
    Freehold
  • Property Type:
    Other
  • Structure Type:
    Shed

Building Features:

  • Cooling Type:
    Air Conditioned
  • Exterior Finish:
    Stucco
  • Heating Fuel:
    Pellet
  • Heating Type:
    In Floor Heating , Stove

Office Listing: 

Tom Garland , Salesperson

Lifestyle
Neighbourhood Info

Get More Info

Book a tour